Apartment for rent: no longer available Zuid Koninginnewal in Helmond

  • 40 m2
  • 2 rooms
  • 20 Immediately
  • Indefinite period
On this page you will find all information of this Apartment in Helmond. You can contact the advertiser if you have any questions.

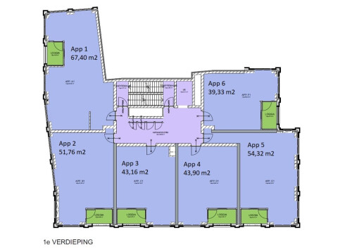
In het hart van het centrum van Helmond hebben wij 22 nieuwe luxe wooneenheden per direct beschikbaar.

Variërend in m2, vanaf 37m2 tot 90m2.

Appartementen met 1 of 2 slaapmakers, met of zonder dakterras of balkon!

Volledig gestoffeerd!

Allemaal eigen berging!

Minimale huurperiode van 6 maanden.

Huurprijzen variëren van 835,- per maand tot 1600 euro per maand excl. gas, water, licht, tv en internet
Excl. gemeentelijke belastingen.
Evt. huursubsidie beschikbaar!

Read more with an package!

General information

City Helmond
District/Neighbourhood: Anders
Register municipality: Yes
Status: Unfurnished
Housemates: None
Viewing In Consultation

Facilities

Private bathroom
Private kitchen
Private toilet
Private front door
Ask the advertiser
Ask the advertiser
Private living room
Show on map